Łódź, Śródmieście

Mieszkanie na sprzedaż

Opis nieruchomości

Mam dla Państwa funkcjonalne i świetnie zlokalizowane mieszkanie w kamienicy w centrum Łodzi, przy ul. Wschodniej z 2 miejscami postojowymi.

 

Kamienica posadowiona jest pod numerem 65 , tylko 1 min. od ul. Narutowicza. Jest w ewidencji zabytków i niedawno przeszła rewitalizację od strony frontowej oraz podwórka.

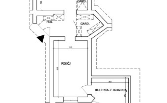
Mieszkanie jest dwustronne, położone na 3. piętrze z balkonem od podwórza.

Obecni właściciele postawili na funkcjonalność. Ostatni remont przeprowadzili 4 lata temu, włącznie z wzmocnieniem stropów, nowym parkietem w salonie oraz remontem kuchni, łazienki i przedpokoju.

Układ mieszkania pozwolił na wydzielenie strefy prywatnej oraz wspólnej przestrzeni.

Z przedpokoju po prawej stronie jest wejście do salonu, z którego jest przejście do kuchni, a z kuchni do łazienki. Ten ciekawy układ dodatkowo podbija wyjście na balkon z kuchni z dużym, otwieranym oknem. Balkon jest z ekspozycją północną, dzięki czemu można spędzać na nim czas również w upalne dni.

Wspólna przestrzeń jest połączona i komfortowa, kuchnia (ok.10 m2) stanowi centrum komunikacyjne z salonem, łazienką i balkonem. W każdym pomieszczeniu jest duże okno, również w łazience. W salonie (18 m2) jest okno na podwórko w kierunku zachodnim. Łazienka jest przestronna z narożną wanną.

Z przedpokoju po lewej stronie jest wejście do 2 sypialni (z pięknymi, dużymi oknami w kierunku wschodnim, 13 i 12 m2) oraz wydzielone miejsce do pracy (w którym jest nie tylko biurko ale również duży regał).

Na podłogach jest zachowany oryginalny parkiet, a dodatkowo jedna z sypialń ma również swoją oddzielną garderobę.

Wspominałam, że mieszkanie jest funkcjonalne, bo właściciele na przestrzeni korytarza wydzielili dodatkową przestronną garderobę oraz liczne miejsca do przechowywania w szafach w zabudowie.

 

Ogrzewanie i ciepła woda są z pieca gazowego dwufunkcyjnego kondensacyjnego, dzięki czemu jest energooszczędnie. Piec ma 4 lata plus jeszcze 1 rok gwarancji.

Instalacja jest miedziana.

 

Opłaty średnie miesięczne:

  • Czynsz – 670 zł
  • Gaz (ogrzewanie + ciepła woda) – 300 zł
  • Prąd – 200 zł

Mieszkanie jest własnościowe z KW.

 

Dodatkowe udogodnienia:

  • 2 miejsca postojowe zależne na podwórku (opłata wliczona w czynszu)
  • Komórka
  • Monitoring na podwórku oraz w bramie.
  • Lokalizacja ( pieszo m.in.:5 min. do ul. Piotrkowskiej, 8 min. do Dworca Fabrycznego, 1,8 km do Manufaktury )

 

Jeśli szukacie Państwo mieszkania w centrum, w kamienicy a jednocześnie potrzebujecie 2 sypialni oraz wydzielonych stref na powierzchni ok. 80 m2, zapraszam.

Z przyjemnością opowiem i zaprezentuję to mieszkanie.

Gosia Koperska

Nota prawna

Opis oferty zawarty na stronie internetowej sporządzany jest na podstawie oględzin nieruchomości oraz informacji uzyskanych od właściciela, może podlegać aktualizacji i nie stanowi oferty określonej w art. 66 i następnych K.C.

Szczegóły oferty

Symbol oferty GKN-MS-48
Powierzchnia 79,46 m²
Powierzchnia użytkowa 79,46 m²
Liczba pokoi 3
Piętro 3
Rodzaj budynku kamienica
Technologia budowlana cegła
Standard
Liczba pięter w budynku 3
Stan lokalu do wprowadzenia
Mies. czynsz admin. 670 PLN
Okna PCV
Instalacje nowe
Balkon okno balkonowe
Liczba balkonów 1
Rok budowy 1920
Gaz jest
Woda ciepła - piecyk gazowy
Ogrzewanie C.O. GAZOWE
Usytuowanie dwustronne

Lokalizacja

Kalkulator kredytowy

PLN
%
Wysokość raty

Kalkulator kosztów

PLN
PLN
PLN
PLN
PLN
PLN
%
PLN
Podatek od czynności cywilno-prawnych
Taksa notarialna (opłata notarialna)
VAT od taksy notarialnej (opłaty notarialnej)
Wniosek do WKW
VAT od wniosku do WKW
Prowizja agencji nieruchomości
VAT od prowizji agencji nieruchomości
Wypisy aktu notarialnego - około
RAZEM (cena + opłaty)

Podobne oferty

mieszkanie na sprzedaż - Łódź, Polesie, Lublinek, Pienista

mieszkanie na sprzedaż

Łódź, Polesie, Lublinek, Pienista
3 pokoje 58,80 m2 8 928,57 zł/m2
mieszkanie na sprzedaż - Łódź, Śródmieście, ks. Ignacego Skorupki

mieszkanie na sprzedaż

Łódź, Śródmieście, ks. Ignacego Skorupki
4 pokoje 74,00 m2 7 418,92 zł/m2
mieszkanie na sprzedaż - Łódź

mieszkanie na sprzedaż

Łódź
3 pokoje 82,07 m2 5 787,74 zł/m2
mieszkanie na sprzedaż - Łódź, Śródmieście, Teatr Wielki

mieszkanie na sprzedaż

Łódź, Śródmieście, Teatr Wielki
2 pokoje 41,22 m2 13 000,00 zł/m2

Napisz do nas

Proszę wypełnić to pole
Proszę wypełnić to pole
Proszę wypełnić to pole
Proszę wypełnić to pole
Trwa wysyłanie...

Ta strona wykorzystuje pliki cookies w celach statystycznych oraz w celu dostosowania naszych serwisów do indywidualnych potrzeb klientów. Zmiany ustawień dotyczących plików cookie można dokonać w dowolnej chwili modyfikując ustawienia przeglądarki. Korzystanie z tej strony bez zmian ustawień dotyczących cookies oznacza, że będą one zapisane w pamięci urządzenia.

rozumiem