Tomaszów Mazowiecki, Browarna

Mieszkanie na sprzedaż

Opis nieruchomości


REZERWACJA!
Wyjątkowa przestrzeń, która inspiruje od pierwszego spojrzenia. Wysoki standard wykończenia, dbałość o detale  tworzą klimat, który trudno opisać – to trzeba poczuć.

Lokalizacja:


Mieszkanie znajduje się w Tomaszowie Mazowieckim przy ulicy Browarnej. Osiedle powstało z myślą o osobach, które cenią zieleń, miejską infrastrukturę oraz szybki dostęp do centrum. W najbliższej okolicy znajdują się szkoły, przedszkola, placówki sportowe, medyczne, restauracje, sklepy oraz park. Położenie zapewnia równowagę między miejskim rytmem a spokojem codzienności.


Opis Nieruchomości:

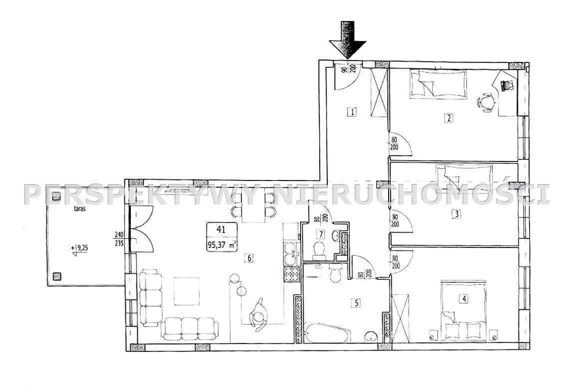
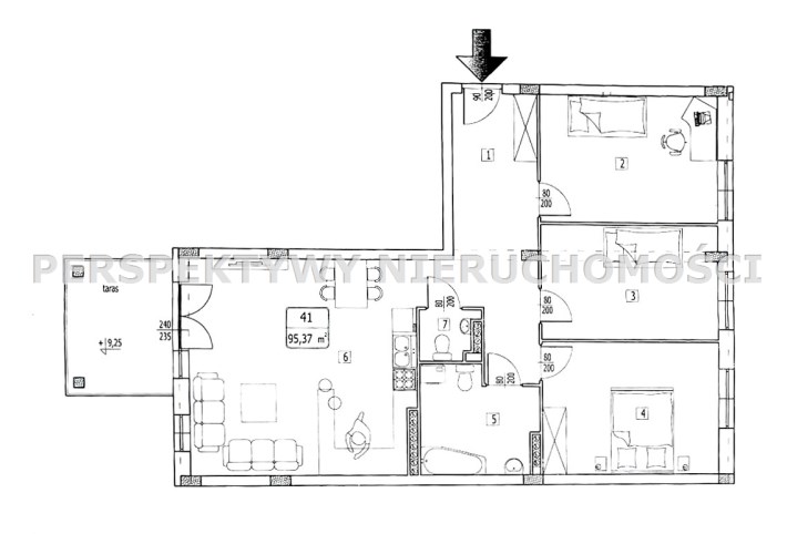
Mieszkanie o powierzchni 95,37 m² i znajduje się trzecim piętrze budynku z windą. Składa się z salonu połączonego z aneksem kuchennym,  pomieszczenia gospodarczego (spiżarnia), trzech sypialni, łazienki z wc.  Całość została urządzona w eleganckim i nowoczesnym standardzie. 
 
Informacje Dodatkowe:

Do mieszkania  przynależy miejsce parkingowe w garażu podziemnymi oraz  komórka lokatorska o powierzchni 8m².

Zapraszam!

Nota prawna

Opis oferty zawarty na stronie internetowej sporządzany jest na podstawie oględzin nieruchomości oraz informacji uzyskanych od właściciela, może podlegać aktualizacji i nie stanowi oferty określonej w art. 66 i następnych K.C.

Szczegóły oferty

Symbol oferty KAW-MS-36580
Powierzchnia 95,37 m²
Powierzchnia użytkowa 95,37 m²
Liczba pokoi 4
Piętro 3
Rodzaj budynku blok
Technologia budowlana cegła + styropian
Standard
Opłaty w czynszu Części wspólne, ogrzewanie, sprzątanie, Winda, woda/ryczałt na wodę, wywóz nieczystości, wywóz śmieci, zaliczka na fundusz remontowy
Opłaty wg liczników prąd
Liczba pięter w budynku 4
Garaż garaż podziemny
Stan lokalu bardzo dobry
Stan prawny Odrębna własność lokalu
Mies. czynsz admin. 1 200 PLN
Czynsz zimowy 1 200 PLN
Okna PCV
Instalacje dobre
Balkon duży
Liczba balkonów 1
Rok budowy 2016
Widok otwarta przestrzeń
Gaz brak
Woda tak - miejska
Dojazd asfalt
Otoczenie osiedla mieszkaniowe
Ogrzewanie C.O. miejskie
Winda tak
Liczba wind 1
Usytuowanie dwustronne

Pomieszczenia

Powierzchnia pokoi 29,70/15,03/14,08/12,93 m2
Podłogi pokoi panele
Typ kuchni aneks kuchenny połączony z jadalnią i salonem
Rodzaj kuchni aneks kuchenny - połączony z salonem
Podłoga kuchni panele podłogowe
Typ łazienki razem z wc
Liczba łazienek 1
Powierzchnia łazienki 7,20 m2
Glazura łazienki nowego typu
Podłoga łazienki gres
Wyposażenie łazienki kabina prysznicowa, lustro, prysznic, umywalka, WC
Liczba przedpokoi 1
Powierzchnia przedpokoi 14,78 m2
Podłoga przedpokoi panele

Kalkulator kredytowy

PLN
%
Wysokość raty

Kalkulator kosztów

PLN
PLN
PLN
PLN
PLN
PLN
%
PLN
Podatek od czynności cywilno-prawnych
Taksa notarialna (opłata notarialna)
VAT od taksy notarialnej (opłaty notarialnej)
Wniosek do WKW
VAT od wniosku do WKW
Prowizja agencji nieruchomości
VAT od prowizji agencji nieruchomości
Wypisy aktu notarialnego - około
RAZEM (cena + opłaty)

Podobne oferty

mieszkanie na sprzedaż - Tomaszów Mazowiecki, Krzyżowa

mieszkanie na sprzedaż

Tomaszów Mazowiecki, Krzyżowa
3 pokoje 65,08 m2 9 972,34 zł/m2
mieszkanie na sprzedaż - Tomaszów Mazowiecki

mieszkanie na sprzedaż

Tomaszów Mazowiecki
3 pokoje 69,70 m2 10 616,93 zł/m2

Napisz do nas

Proszę wypełnić to pole
Proszę wypełnić to pole
Proszę wypełnić to pole
Proszę wypełnić to pole
Trwa wysyłanie...

Ta strona wykorzystuje pliki cookies w celach statystycznych oraz w celu dostosowania naszych serwisów do indywidualnych potrzeb klientów. Zmiany ustawień dotyczących plików cookie można dokonać w dowolnej chwili modyfikując ustawienia przeglądarki. Korzystanie z tej strony bez zmian ustawień dotyczących cookies oznacza, że będą one zapisane w pamięci urządzenia.

rozumiem